Banesa 236 Blloku i Ri “C” Hyrja 3**REZERVUAR
Description
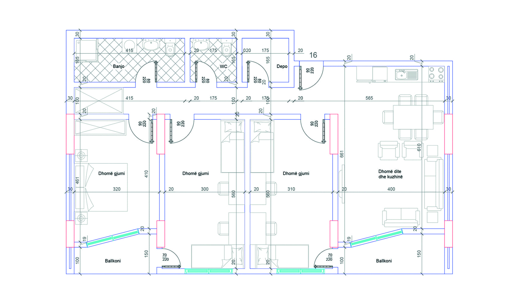
BLLOKU I RI C, HYRJA 3, KATI 3, BANESA 236, 124 m2, Dhomë e ditës, Tryezaria, Kuzhina, 3 Dhoma gjumi, Banjo, Koridor, 2 Ballkone, 1 Depo.
Address
-
Address Rruga Beteja e Loxhes - Pejë
-
Country Albania
-
Province/State Kosove
-
City/Town Peje
-
Postal code/ZIP 30000
Overview
- Property ID 11493
- Price Çmimi i diskutueshem
- Property Type Apartamente, Banesa
- Property status Te Shitura
- Rooms 4
- Bedrooms 3
- Bathrooms 1
- Year Built 2023
- Size 124 m2
- Label Blloku i Ri "C1 - C3", Hyrja 3
- Hyrja 3
- Kati 3
- Ballkona 2
Get Directions
Contact
Shala Swiss Group Agent
Property Agent
+41798870000
+38344611364
info@shalaswissgroup.com
