Banesa 303 Blloku i Ri “C” Hyrja 3**REZERVUAR
Description
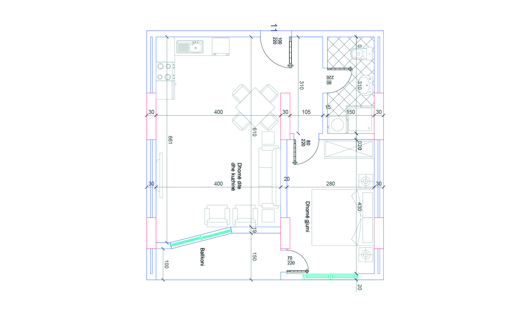
BLLOKU I RI C, HYRJA 3, KATI 7, BANESA 303, 68 m2, Dhomë e ditës, Tryezaria, Kuzhina, Dhomë gjumi, Banjo, Koridor, Ballkon.
Address
-
Address Rruga Beteja e Loxhes - Pejë
-
Country Albania
-
Province/State Kosove
-
City/Town Peje
-
Postal code/ZIP 30000
Overview
- Property ID 10902
- Price Çmimi i diskutueshem
- Property Type Apartamente, Banesa
- Property status Te Shitura
- Rooms 2
- Bedrooms 1
- Bathrooms 1
- Year Built 2023
- Size 59.5 m2
- Label Blloku i Ri "C1 - C3", Hyrja 3
- Hyrja 3
- Kati 7
- Ballkona 1
Get Directions
Contact
Shala Swiss Group Agent
Property Agent
+41798870000
+38344611364
info@shalaswissgroup.com
