Banesa 149/150 Blloku i Ri “C” Hyrja 2**REZERVUAR
Description
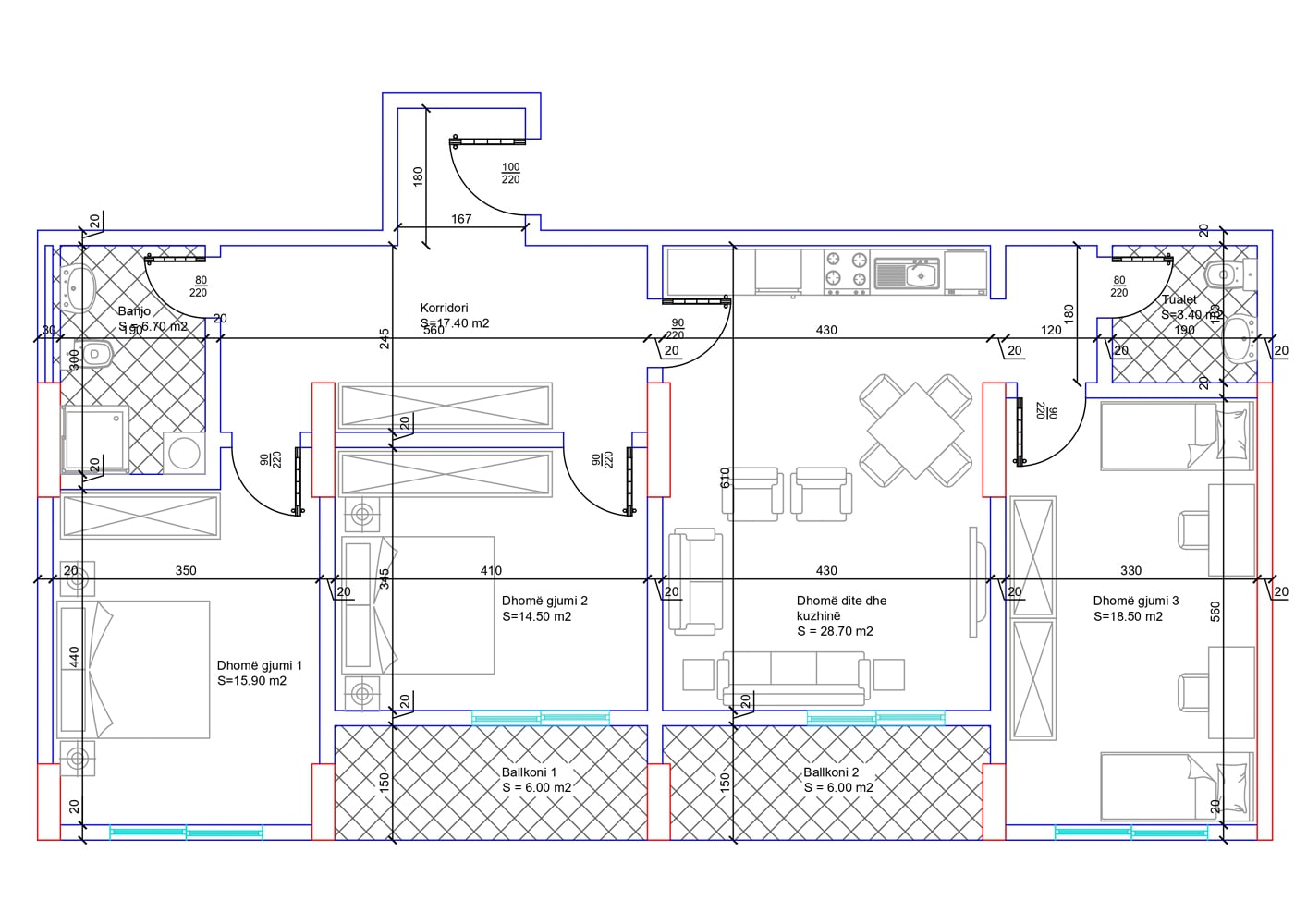
BLLOKU I RI C, HYRJA 2, KATI 5, BANESA 149/150, 134.40 m2, Dhomë e ditës, Tryezaria, Kuzhina, 3 Dhoma gjumi, 2 Banjo, Koridor, 2 Ballkona.
Address
-
Address Rruga Beteja e Loxhes - Pejë
-
Country Albania
-
Province/State Kosove
-
City/Town Peje
-
Postal code/ZIP 30000
Overview
- Property ID 13560
- Price Çmimi i diskutueshem
- Property Type Apartamente, Banesa
- Property status Te Shitura
- Rooms 4
- Bedrooms 3
- Bathrooms 2
- Year Built 2023
- Size 134.4 m2
- Label Blloku i Ri "C1 - C3", Hyrja 2
- Hyrja 2
- Kati 5
- Ballkona 2
