Banesa 178 Hyrja D***TE SHITURA
Description
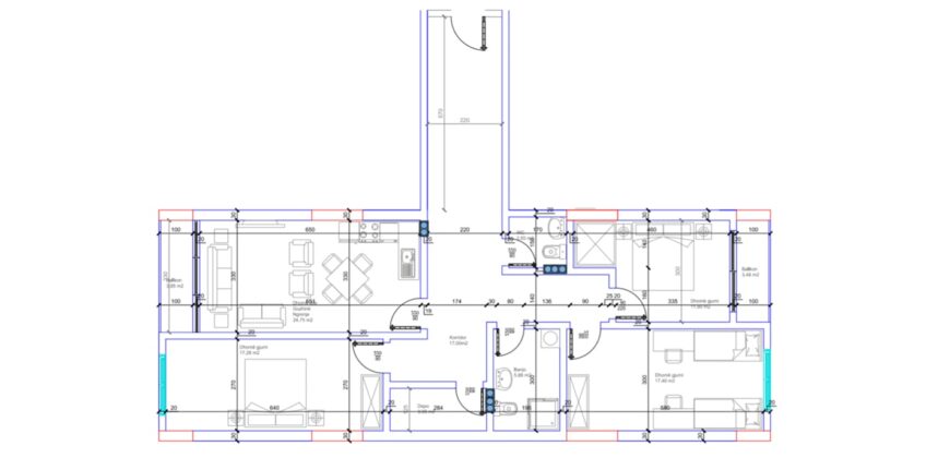
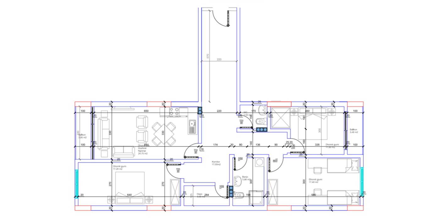
HYRJA D, KATI 1, BANESA 178, 133.70 m2, Dhomë e ditës, Tryezaria, Kuzhina, 3 Dhoma gjumi, 2 Banjo, Koridor, 2 Ballkona, Depo.
Address
-
Address Rruga Beteja e Loxhes - Pejë
-
Country Albania
-
Province/State Kosove
-
City/Town Peje
-
Postal code/ZIP 30000
Overview
- Property ID 178-D
- Price Çmimi i diskutueshem
- Property Type Apartamente, Banesa
- Property status Te Shitura
- Rooms 4
- Bedrooms 3
- Bathrooms 2
- Year Built 2021
- Size 133.7 m2
- Label Blloku “A”, Godina D
- Hyrja D
- Kati 1
- Ballkona 2
Get Directions
Contact
Shala Swiss Group Agent
Property Agent
+41798870000
+38344611364
info@shalaswissgroup.com
