Banesa 70 Hyrja A***REZERVUAR
Description
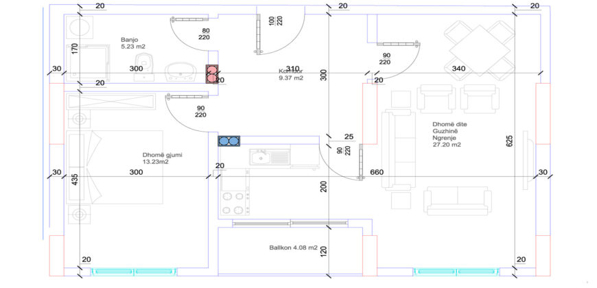
HYRJA A, KATI 7, BANESA 70, 67.17 m2, Dhomë e ditës, Tryezaria, Kuzhina, Dhoma gjumi, Banjo, Koridor, 2 Ballkona.
Address
-
Address Rruga Beteja e Loxhes - Pejë
-
Country Albania
-
Province/State Kosove
-
City/Town Peje
-
Postal code/ZIP 30000
Overview
- Property ID Banesa 70-A
- Price Çmimi i diskutueshem
- Property Type Apartamente, Banesa
- Property status Te Shitura
- Rooms 1
- Bedrooms 1
- Bathrooms 1
- Year Built 2020
- Size 67.17 m2
- Label Godina A
- Hyrja A
- Kati 7
- Ballkona 2
Get Directions
Contact
Shala Swiss Group Agent
Property Agent
+41798870000
+38344611364
info@shalaswissgroup.com
